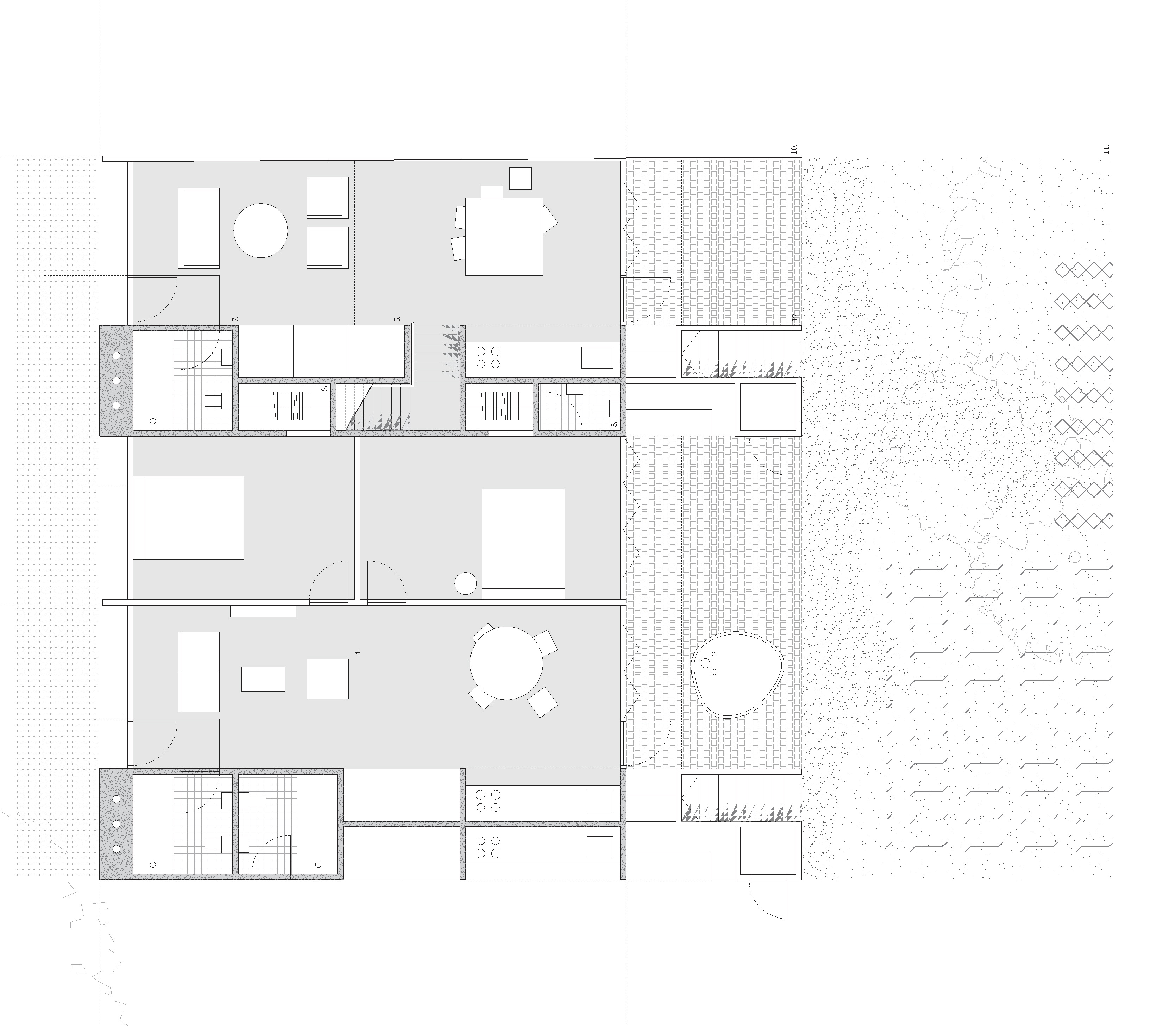
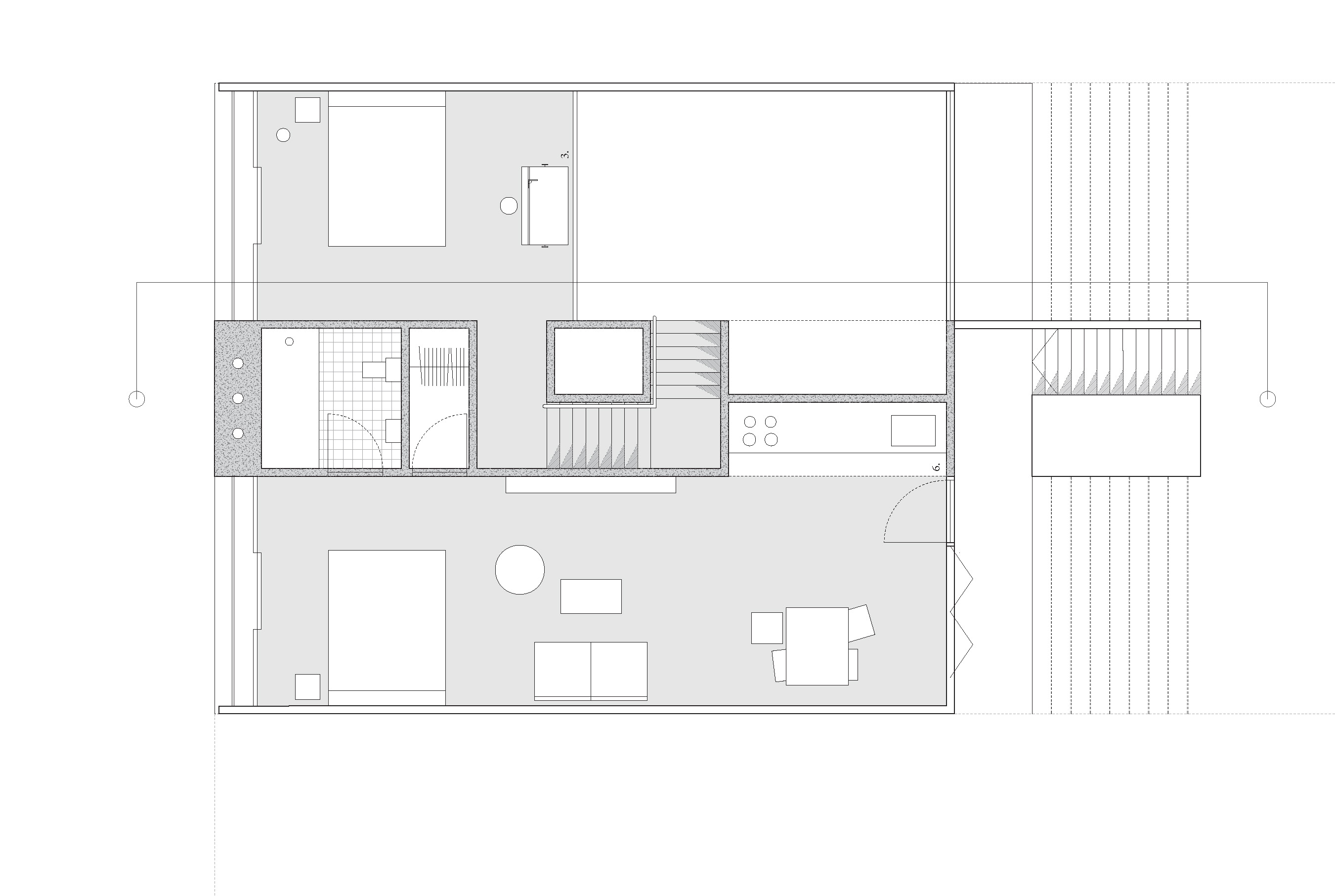
Housing as a Frame
Partner: Stephan Van Eeden
Site: South Bronx, NY
At a time when the question of housing has become dominated by socioeconomic or political discourses — fields that themselves are fluid, liquid and susceptible to capitalistic appropriation —this project argues for an architecture of resistance. An architecture that operates
at its most basic level —the ability to provide a frame for living and enjoying —dreaming and remembering.
We imagine housing from the following principles:
Housing not as commodity.
We reject modes of housing that are susceptible to consumption, obsolescence and replacement. Instead housing should embody an attitude of staying. Housing (as the basic unit of the city) is viewed as a public good. It is investment rather than speculation -a place to
return to not to leave from. A housing of dignity is proposed.
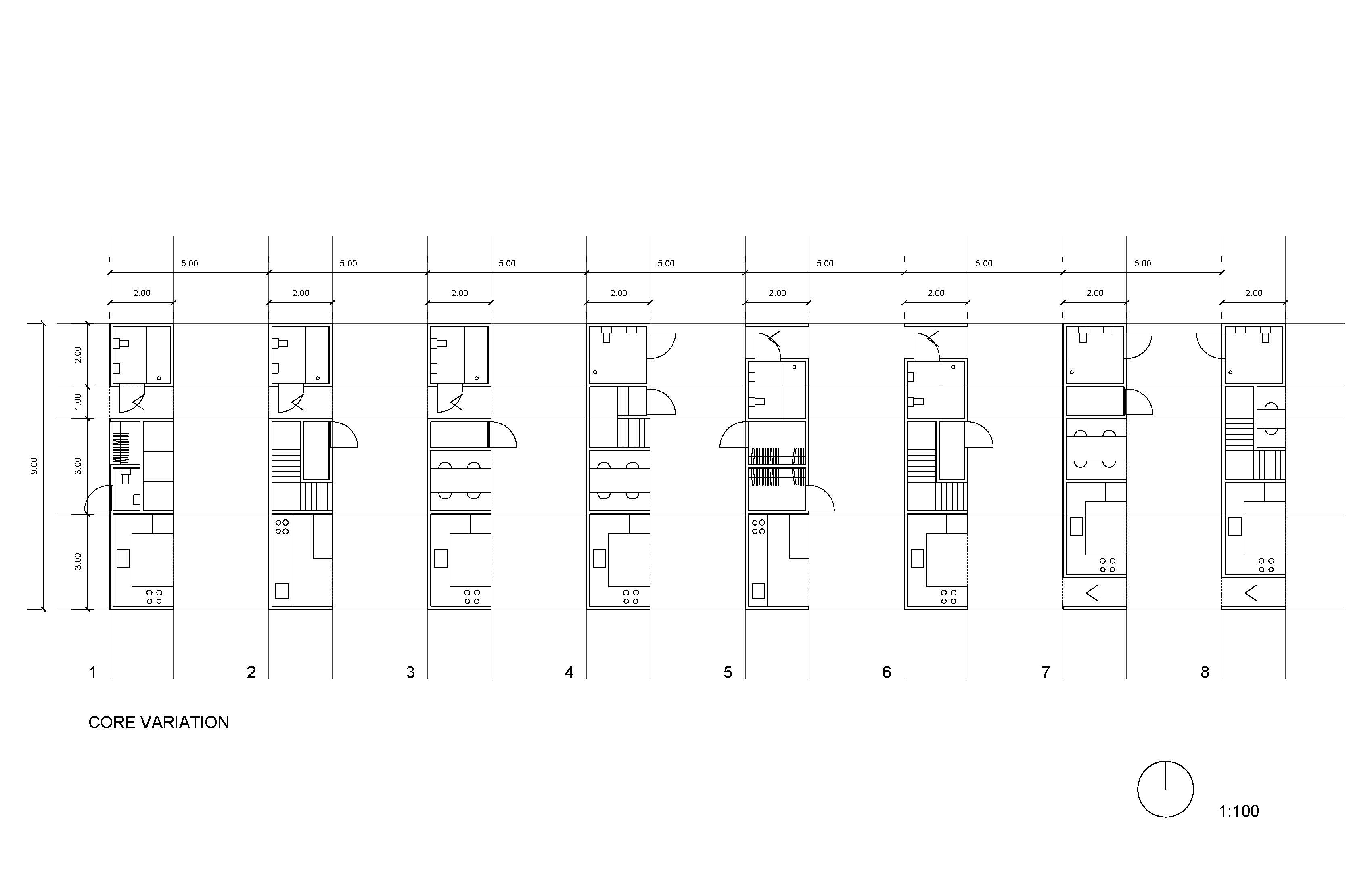
Stability rather than flexibility.
We argue for stability rather than flexibility —in the selection of type, program, form and material. While flexibility recognizes the failure of modernist architecture to address the capitalist city, its commitment to change, subdivision, modification etc. paradoxically assumes
capitalism’s unevenness and let-it be policies as natural processes and therefore acceptable evolutions of the city. In other words, housing as a public good becomes marketable, easily consumed, repackaged, and commodified. At the unit level, flexible plans can lack catalysts or condensers. The overlapping of uses on a
single space results in the overall reduction of space given to the house. The lack of specificity can result in spaces that while simply adequate for every task, not proficient at any. Lastly, with an infinite reconfiguration of absolute freedom, users are not able to manage the space on their own in an optimal way.
Partner: Stephan Van Eeden
Site: South Bronx, NY
At a time when the question of housing has become dominated by socioeconomic or political discourses — fields that themselves are fluid, liquid and susceptible to capitalistic appropriation —this project argues for an architecture of resistance. An architecture that operates
at its most basic level —the ability to provide a frame for living and enjoying —dreaming and remembering.
We imagine housing from the following principles:
Housing not as commodity.
We reject modes of housing that are susceptible to consumption, obsolescence and replacement. Instead housing should embody an attitude of staying. Housing (as the basic unit of the city) is viewed as a public good. It is investment rather than speculation -a place to
return to not to leave from. A housing of dignity is proposed.
Stability rather than flexibility.
We argue for stability rather than flexibility —in the selection of type, program, form and material. While flexibility recognizes the failure of modernist architecture to address the capitalist city, its commitment to change, subdivision, modification etc. paradoxically assumes
capitalism’s unevenness and let-it be policies as natural processes and therefore acceptable evolutions of the city. In other words, housing as a public good becomes marketable, easily consumed, repackaged, and commodified. At the unit level, flexible plans can lack catalysts or condensers. The overlapping of uses on a
single space results in the overall reduction of space given to the house. The lack of specificity can result in spaces that while simply adequate for every task, not proficient at any. Lastly, with an infinite reconfiguration of absolute freedom, users are not able to manage the space on their own in an optimal way.
A housing of generosity is proposed.
Slow rather than fast.
We favor processes that are slow and resists those that are fast. Building a community is a multi-generational process. Therefore, the capacity of housing to build community is directly related to its ability to last —to gain, lose and regain meaning— and by the way it is meant to be occupied. Housing that is cheap and supports shorter an shorter rent horizons disrupts communities.
A housing of permanence is proposed.
Clear distinction between public and private.
We favor spaces that are private as private (refuge) and public as public (community). The project proposes that community occurs in the public sphere not the private. Modes of co-sharing, co-living that blur the lines of private and public may encourage sharing, but may also lead to rationing, less generosity, less personal space, and the transformation of the public sphere (goods that should be enjoyed by all) into private building amenities. A clear delineation or limit resists the privatization of what should be public.
A housing of limits is proposed.